Hliníkové dveře
Hliníkový dveřní systém s přerušeným tepelným mostem, štíhlým pohledovým profilem a moderním vzhledem pro elegantní vstupy a lehčí konstrukce.
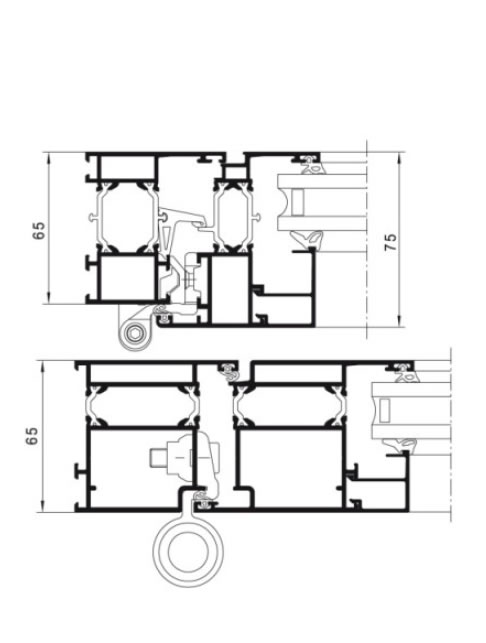
Systém HEROAL 065 je vhodný tam, kde je důležitá elegance, čisté pohledové linie a spolehlivá hliníková konstrukce s přerušeným tepelným mostem.
Přehled hlavních vlastností systému HEROAL 065.
Elegantní hliníkový systém vhodný pro projekty, kde je důležitý čistý vzhled, pevnost a moderní design vstupu.
Menší pohledová výška profilu pomáhá vytvořit lehčí a elegantnější vzhled vstupních dveří.
Hliník zajišťuje vysokou stabilitu, odolnost a dlouhou životnost při každodenním používání.
Různé barevné varianty a možnost dřevodekoru usnadňují sladění dveří s fasádou i stylem domu.
Technické informace a doplňující podklady k systému HEROAL 065.
Rádi vám poradíme, zda je systém HEROAL 065 vhodný pro váš dům, vstupní portál i požadované designové provedení.
Spolehlivý partner pro okna, dveře, zimní zahrady i stínění. Nabízíme kvalitní produkty, odbornou montáž a osobní přístup ke každé zakázce.
Firma HZB působí na trhu již od roku 1997. Díky dlouholetým zkušenostem dokážeme navrhnout řešení, které bude funkční, kvalitní a estetické.
Nabízíme plastová a hliníková okna a dveře, zimní zahrady, stínicí techniku i další prvky, které zvyšují komfort a hodnotu vašeho bydlení.
Správná montáž je zásadní pro funkčnost a životnost oken a dveří. Naši technici provádějí instalaci přesně a profesionálně, aby produkty fungovaly tak, jak mají.
Postaráme se o celý projekt – od návrhu a zaměření přes dodávku až po montáž a servis. Díky tomu máte jistotu bezproblémové realizace.
Ověřené značky
Používáme prověřené systémy a produkty značek, které jsou zárukou kvality, dlouhé životnosti a spolehlivého provozu.











